nyheder - 23.11.2024
Lynæs Søpark er nu færdigt bygget
Vi kan byde de sidste indflyttere velkommen i Lynæs Søpark. D. 1 december flyttede de sidste beboere ind og de 51 rækkehuse er nu fuldt færdigbygget og beboet. Over de næste par år vil den nyplantet bevoksning vokse og skabe et naturskønt område omkring boligerne.


nyheder - 07.01.2024
Invitation til Åbent hus
Det er med stor glæde, at vi kan invitere interesserede i Lynæs Søpark til åbent hus. Byggeriet er kommet langt, og vi kan med stolthed fremvise de første færdige rækkehuse i etape 1. Dette åbent hus afholdes for alle, der har interesse i at leje et af de nybyggede rækkehuse. Til denne dag vil der være ét rækkehus af hver størrelse åbent til besigtigelse.
Datoen for åbent hus er onsdag den 7. februar fra kl. 15.00 til 17.00
Bemærk at tilmelding til åbent hus er obligatorisk og skal ske til Isabella fra Momentum+ på e-mail ik@momentumplus.dk
Adresse: Lynæs Søpark 1, 3390 Hundested.
nyheder - 23.10.2023
Nyt fra bygherre
I de sidste 14 dage har der været meget medieomtale vedrørende Lynæs Søpark. I sin korthed omhandler det kommunens afgørelse i maj 2022 om at rækkehusbebyggelsen ikke er omfattet miljøbeskyttelsesloven. Den afgørelse er blevet hjemsendt til kommunen til fornyet behandling. Denne afgørelse er blevet genbehandlet af Halsnæs Kommune og der er truffet en afgørelse om ikke-VVM-pligt for boligprojektet Lynæs Søpark.
Det betyder altså, at Halsnæs Kommune har vurderet, at boligprojektet Lynæs Søpark ikke vil medføre væsentlige miljøpåvirkninger og dermed ikke forudsætter udarbejdelse af en miljøkonsekvensrapport.
Vi i Lynæs Søpark har været i god dialog med kommunen, der har haft ekstern juridisk rådgivning knyttet til udtalelsen. Senest har vi fået følgende besked fra Pia Larsen Weirum, Leder fra Byg og Plan i Halsnæs Kommune, at;
Det er kommunens vurdering, at det ville have været i strid med proportionalitetsprincippet, hvis Halsnæs Kommune som led i håndhævelsen af miljøvurderingslovens bestemmelser greb ind overfor det igangværende byggeri,
Denne vurdering er foretaget på baggrund af en samlet vurdering af omstændighederne i sagen, med særligt vægt på byggeriets meget fremskredne stade og det forhold, at det inden for en tidsmæssigt begrænset periode har været muligt at foretage en retlig lovliggørelse af projektet,
Halsnæs Kommune har med baggrund i ovenstående valgt ikke at stoppe byggeriet.
I den forgangne måned har Milton Huse fortsat arbejdet med gasbeton, samt tag på blok 2 og 3. Støbearbejdet er næsten færdigt for alle de 51 rækkehuse. Indvendigt er køkkener, badeværelser og elektriske installationer ved at blive udført.
Man kan til enhver tid kontakte ejendomsmægleren, Ulrik Basso fra Home, med eventuelle spørgsmål vedrørende leje og ledige boliger. Telefon: 22 53 54 99 eller mail ulbl@home.dk


nyheder - 30.09.2023
Flotte badeværelser næsten klar til aflevering
Et eksempel på et næsten færdigt badeværelse i Lynæs Søpark på et rækkehus i etape 1. Skab under vasken og masser af plads til at bevæge sig rundt i rummet. Billedet er fra et badeværelse i en bolig på 85 kvm.
nyheder - 28.02.2023
Opdatering af byggeriet, Milton i gang og Fælleshuset
Byggeriet i Lynæs Søpark er i fuld gang og Milton Huse har netop anlagt de de første fundamenter – se de aktuelle billeder. Vi arbejder efter tidsplanen, som man kan se de første på hjemmesiden og de første huse står klar primo 2024.
Vi har fra start haft tilknyttet biologer fra Amphi Consult for at sikre naturen bedst muligt. I forbindelse med vores ansøgning om placering af fælleshus længere væk fra søen, en beslutning truffet for at skåne miljøet, er dispensation til ny placering blevet givet fra Halsnæs Kommune, men desværre nu stoppet af Nævnenes Hus pga. en klage.
Klagen er indgivet af en interessegruppe, der tilsyneladende ikke har sat sig ind i sagen, men blot ønsker at stoppe byggeriet. Det synes heldigvis at være en mindre gruppe, vi modtager i hvert fald mange positive tilkendegivelser fra beboere i området, nye tilflyttere og Halsnæs Kommune.
Som skrevet, bygger vi naturligvis videre på det fine projekt og har rigtig mange reservationer på boligerne. Imidlertid er vi nu nødsaget til at stoppe opførelsen af fælleshuset. Det er svært at sige, om og hvis vi kan få fælleshusets placering på plads. Den tilladte placering i lokalplanen er meget tæt på søen og det ønsker vi ikke af hensyn til naturen i området.
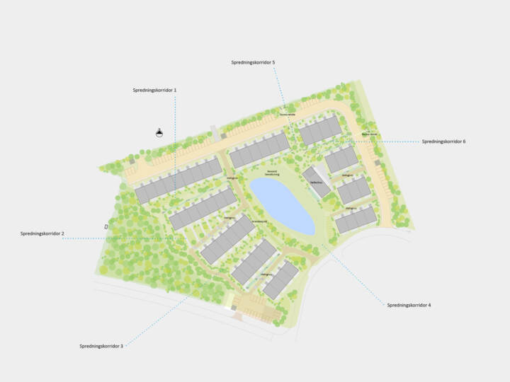
Vi har selvfølgelig set fælleshuset som en del af et spændende miljø, men mener, at det uanset fælleshus, stadig er et meget attraktivt bosted, vi bygger. Fællesskab skabes af mange ting, og naturen i området er unik og helt central for bebyggelsen. Bebyggelsen vil have store fællesarealer omkring søen og lunden på højen, hvor vi som første bebyggelse nogensinde i Danmark har placeret bo-pyramider til sikring af områdets be- stand af markfirben.
Søen vil blive styrket og passet og skadelige planter såsom Canadisk Gyldenris og Pil vil i samarbejde med biologerne blive fjernet. Samtidig fjernes de mange invasive arter (Signalkrebs, Karusse), der kan have udryd- det de ønskede arter, som for eksempel storvandsalamander og spidssnudede frøer.
Ambitionen er at sikre disse arter gode levevilkår, når vi er færdige. Vores biologer har været med fra start og arbejder løbende med dette. Fordi området har fået lov til at være vildt groende og ureguleret i mange år, har de invasive arter, også på flora-siden skadet naturen og dyrearterne på grunden. Det bliver der nu rettet op på, så bebyggelsen bliver meget bæredygtig og der kan skabes et unikt fællesskab, samlet om natur og gode naboer.
nyheder - 10.01.2023
Opstart af Milton Huse
Milton Huse er startet op på grunden og vi glæder os til, at de skal i gang med at bygge selve husene. Der er anlagt vej af vores jordentreprenør og det begynder så småt at tage form i det kuperet terræn. Forsyningerne er færdige med, at lægge spildevandsledning, vandforsyning, fiber og strøm til alle husene.
Der vil ingen længe komme lejekontrakter ud til de for-reserverede boliger. I vil blive orienteret af ejendomsmægleren, Ulrik fra HOME - Hundested.
nyheder - 05.12.2022
Modning af grunden
Igennem de seneste måneder er modningsarbejdet fortsat på Lynæs Søpark. Halsnæs Forsyning har omlagt kloakledningen, og terrænet bliver bearbejdet af jordentreprenøren, så husene tander i takt med niveauforskellene.
Fælleshuset bliver bearbejdet af arkitekt og leverandør så det indeholder nogle gode faciliteter, der kommer til at skabe mulighederne og rammerne for fællesskabet i Lynæs Søpark.
Ejendomsmæglerne fra HOME har haft rigtig mange henvendelser efter Lynæs Søpark er overgået til lejeboliger. Rigtig mange har reserveret en bolig, og mæglerne arbejder kontinuerligt på de henvendelser, som dagligt løber ind.
nyheder - 29.09.2022
Lynæs Søpark overgår til Lejeboliger
Modningsarbejdet er i fuld gang i den kommende Lynæs Søpark og ingen længe starter Milton Huse op på grunden. Vi har i de forgangne måneder fået rigtig mange henvendelser fra interesserede i boligerne. Det er dejligt, at mærke den positive stemning og holdning til projektet. Vi har lyttet og lært fra mange af henvendelserne og det er besluttet at boligerne bliver til lejeboliger fremfor ejerboliger. Mængden af interesserede i at leje er stor og derfor har vi valgt at gå denne vej.
Vi er selvfølgelig kede af at måtte skuffe de af jer, som var interesserede i en ejerbolig. Alle de reserverede boliger får muligheden for at skrive sig op til en lejebolig som de første, hvis det stadig har interesse. De lokale Ejendomsmæglere fra Home Hundested, sidder stadig klar til at hjælpe med spørgsmål og er ligeledes knyttet til projektet nu hvor det bliver lejeboliger. Hjemmeside, Facebook mm. er i gang med at blive opdateret.
nyheder
Klargøring til jordbundsprøver
Vi har nu, efter de modtagne dispensationer og fremsendelse af vores myndighedsandragende, opstartet rydningsarbejdet på vores grund. Disse har til formål at få udført prøveboringer, så vi får helt styr på jordbundsforhold.
I den forbindelse, at vi entreret med Amphi Consult, der som naturrådgiver har gennemført en forundersøgelse af arter på vores grund. De deltager ved gravearbejdet, så vi så nænsomt som muligt og i overensstemmelse med de tilladelser og retningslinjer der er givet vi har fået fra kommunen, kan udføre vores arbejde. Selve byggeriet går i gang efter sommer, når vi har modtaget byggetilladelse.
Vi er af vores udførende entreprenør blevet gjort opmærksom på, at borgere bevæger sig ind på grunden og går tæt på de arbejdende. Dette er ikke tilladt og kan være til fare for både borgerne selv og vores medarbejder og vi henstiller venligst til at holde sig på afstand af det fysiske arbejde.
Tak for billedet, som skal krediteres til Tine Uffelmann / Vist Nordsjælland
nyheder - 24.06.2022
Lynæs Søpark nævnt i Dagens Byggeri
Vi har talt med Rasmus fra Dagens Byggeri, som har lavet en spændende artikel om Lynæs Søpark og de 51 rækkehuse vi vil skabe i det naturskønne Lynæs. Interesserede kan gå ind via linket her og læse hele artiklen
nyheder
Klargøring til jordbundsprøver
Vi har nu, efter de modtagne dispensationer og fremsendelse af vores myndighedsandragende, opstartet rydningsarbejdet på vores grund. Disse har til formål at få udført prøveboringer, så vi får helt styr på jordbundsforhold.
I den forbindelse, at vi entreret med Amphi Consult, der som naturrådgiver har gennemført en forundersøgelse af arter på vores grund. De deltager ved gravearbejdet, så vi så nænsomt som muligt og i overensstemmelse med de tilladelser og retningslinjer der er givet vi har fået fra kommunen, kan udføre vores arbejde. Selve byggeriet går i gang efter sommer, når vi har modtaget byggetilladelse.
Vi er af vores udførende entreprenør blevet gjort opmærksom på, at borgere bevæger sig ind på grunden og går tæt på de arbejdende. Dette er ikke tilladt og kan være til fare for både borgerne selv og vores medarbejder og vi henstiller venligst til at holde sig på afstand af det fysiske arbejde.
Tak for billedet, som skal krediteres til Tine Uffelmann / Vist Nordsjælland
nyheder
Opdatering - Byrådet godkendte Lynæs Søpark dispensationer
Torsdag aften d. 28/4 stadsfæstede Halsnæs Byråd administrationens anbefaling om, at godkende vores 3 ansøgte dispensationer. Et overvældende JA fra Byrådet til at støtte op om deres administration og Lynæs Søpark. Nu starter vi på byggetilladelsen, som forventes godkendt inden for ca. 3 måneder

nyheder
Konsekvensanalyse
I denne artikel kan du læse om en konsekvens- og sammenligningsanalyse af natur og terræn ved den eksisterende lokalplan kontra den nye situationsplan vi i samarbejde med Kommunen har ansøgt om. Analysen er udført af Constructa - Rådgivende Ingeniører og Arkitekter.
nyheder
Status på Lynæs Søpark - Januar 2022
Vi har igennem de sidste 6 måneder gjort os en masse erfaringer. Vi har været i dialog med kommunens planafdeling, købere, ingeniører, hvilket der er kommet denne status besked ud af.
nyheder
Ejendomsmægler på Lynæs Søpark
De lokale ejendomsmæglere fra HOME · Hundested kommer til at håndtere salget af de 46 rækkehuse. Ejendomsmæglerne, Rune og Ulrik fra HOME · Hundested. De vil ringe interesserede op om muligheden for køb af enhederne.
Kontakt
· Rune - runta@home.dk - telefon 61653166
· Ulrik - ulbl@home.dk - telefon 22535499


nyheder
Jyske Bank hjælper med finansieringen
Søger du råd og vejledning i forbindelse med økonomi og finansiering af et rækkehus i Lynæs Søpark? Så har du mulighed for at kontakte Steffen og Henrik fra Jyske Bank, der lokalt sidder klar til at hjælpe med løsninger og muligheder. Klik på knappen "Jyske Bank PDF" og du får direkte kontaktinformation til dem.
nyheder
Lynæs Søpark nævnt på SN.dk
Journalisten, Anders Nordstrand fra Sjællandske Nyheder - SN.dk , ringede og spurgte ind til Lynæs Søpark og hvad tankerne er for det fremtidige fællesskab og de seniorvenlige rækkehuse i Lynæs. Det kom der et fint skriv ud af, som man kan læse mere om herunder. Klik på linket for at læse hele artiklen.

Download Lejeprospekt
Er du interesseret i at downloade Lynæs Søpark Lejeprospekt kan du gøre dette via nedenstående knap. Så har du alt information samlet i én PDF, som du altid kan hive frem.

nyheder
Online Åbent Hus
Nåede du ikke at se vores online åbent hus kan du gense hele streamingen via Youtube. Klik på linket herunder og du får mulighed for at se bygherren og projektledere fortælle mere om Lynæs Søpark, byggeriet, den flotte sø, naturen og mulighederne for at købe et 1-plans rækkehus i Lynæs.


nyheder
Skilte på grunden
Den lokale skiltemager, Klaus fra KR Skilte, har opsat flotte skilte på grunden sammen med en lokal tømrermester. Skiltene er lavet med en lille beskrivelse om de kommende 46 rækkehuse i 1 plan med lille have og direkte udsigt til sø. Tak til Klaus for nogle flotte skilte.

























